VICTRIX Zeus 26 ErP
- 23.6kW Névleges fűtési teljesítmény
- 26.0kW Névleges HMV teljesítmény
- Fali beépített tárolós kombi Működés módja
- 92% "A" kategória fűtés, "A" XL kategória HMV Szezonális hatásfok (2010/30/EU)
- 843 / 580 / 380 Méret (mag/szél/mély)
Bemutatás
Az VICTRIX Zeus 26 ErP fali készülék 23,6 kW teljesítménnyel képes fűtési-, ill. 26 kW teljesítménnyel tárolós rendszerben használati melegvizet előállítani. A készülék az (opcionális) Amico távszabályzóval könnyen és gyorsan, a készüléktől távolról is vezérelhető. Külső érzékelő csatlakoztatása esetén időjárásfüggő szabályozás is lehetséges. Beépített tárolója révén akár két melegvíz-csapoló egyidejű használata esetén is kellő mennyiségű melegvizet képes előállítani. A készülék tartalmazza a használati melegvíz oldali tágulási tartályt, valamint a fali kiálláshoz történő csatlakozáshoz szükséges bekötőkészletet is.
KÉT FÜGGETLEN HŐCSERÉLŐ
Mind a fűtési, mind a HMV hőcserélő rozsdamentes acélból készült.
DIGITÁLIS VEZÉRLÉSŰ LÁNGMODULÁCIÓ
Az elektronikus lángmoduláció folyamatos energia megtakarítás és emelt szintű komfort biztosítása mellett képes a fűtővíz, valamint a használati melegvíz hőmérsékletének megfelelő szabályozására.
HMV TÁGULÁSI TARTÁLY
A HMV körben jelentkező nyomásnövekedés kompenzálására a Zeus kW készülékekbe egy második tágulási tartály is beépíthető.
SZABÁLYOZHATZÓ BY-PASS
A beépített, szabályozható by-pass lehetővé teszi a kazán használatát termosztatikus szeleppel felszerelt radiátoros rendszer esetén is. A szabályozható by-pass optimális működést tesz lehetővé.
MOTOROS VÁLTÓSZELEP
A használati melegvíz előállításakor a beépített, motoros váltószelep irányítja a kazánvizet a HMV hőcserélő felé.
BEÉPÍTETT IDŐJÁRÁSFÜGGŐ SZABÁLYOZÁS
Az időjárásfüggő szabályozás magasabb komfort mellett biztosít költséghatékonyabb üzemelést. Az elektronika a külső hőmérséklet függvényében változtatja a kazánvíz-hőmérsékletet, így energiát takarít meg és magasabb komfortot biztosít. A készülék elektronikája tetszőleges szabályozási egyenes beállítását teszi lehetővé.
ROZSDAMENTES ACÉL MELEGVÍZTÁROLÓ
A beépített 45 literes űrtartalmú melegvíztároló lehetővé teszi a melegvíz felhasználást két csapoló, például zuhany és mosogató csap egyidejű működtetésekor is.
HMV TÁGULÁSI TARTÁLY
A HMV körben jelentkező nyomásnövekedés kompenzálására a Victrix Zeus Superior ErP készülékek egy második beépített tágulási tartállyal is rendelkeznek a HMV kör számára.
BEKÖTŐCSŐKÉSZLET GYÁRILAG A KÉSZÜLÉK MELLÉ CSOMAGOLVA
EGYÜTTMŰKÖDÉS A DIM EGYSÉGEKKEL
A VICTRIX Zeus Superior ErP készülékek teljes körűen képesek együttműködni az Immergas DIM egységeivel, így lehetséges több, egymástól független fűtési kör (akár radiátoros, akár kevert) kialakítása.
KONDENZÁCIÓS TECHNOLÓGIA
Az égéstermék rejtett hőjének (vízgőz tartalmának) kihasználása (kondenzációja) révén ugyanannyi energiát, mint a hagyományos, nem kondenzációs készülékek, kevesebb gáz eltüzelésével képesek leadni. A jobb tüzeléstechnikai hatásfok révén nem csak energiát takarít meg, hanem a környezetet is kevésbé terheli.
IPX4D ELEKTROMOS VÉDETTSÉG
Magas páratartalmú és fröccsenő vizes környezetben is biztosítja a készülék biztonságos működését.
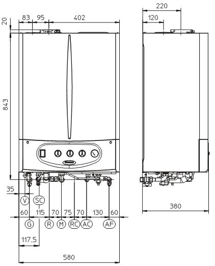
Méretek
|
BEFOGLALÓ MÉRETEK |
||||
|
Típus |
Magasság [mm] |
Szélesség [mm] |
Mélység |
Füstgáz evezetés / levegő bevezetés mérete [mm] |
|
VICTRIX Zeus 26 ErP |
843 |
580 |
380 |
Ø 60/100 |

|
CSATLAKOZÓ MÉRETEK |
||||||||
|
Típus |
Fűtési előremenő |
Fűtési visszatérő |
Használati melegvíz |
HMV cirkuláció |
Használati hidegvíz |
Kondenzvíz elvezetés |
Gáz
|
Elektromos |
|
VICTRIX Zeus 26 ErP |
3/4" |
3/4" |
1/2" |
1/2" |
1/2" |
NA15 |
1/2" |
23OV / 50Hz |
Kiegészítők
Külsőhőmérséklet-érzékelő
Fűtési elzárócsapok roppantó gyűrűs csatlakozással (2 db)
Fűtési elzárócsapok roppantó gyűrűs csatlakozással, szűrővel szerelve
HMV cirkulációs bekötőcső készlet szivattyúval
HMV cirkulációs bekötőcső
Kondenzvíz átemelő szivattyú
Alpha mágneses örvényszűrő
Egyfunkciós relé panel (Csak AMICO távvezérlővel együtt!)
Zóna vezérlő doboz
Ø 80 mm-es, vízszintes elvezető készlet végelem nélkül
Ø 60/100 mm-es, koaxiális, vízszintes készlet
Ø 60/100 mm-es, koaxiális, vízszintes kivezetés
Ø 60/100 mm-es, koaxiális, függőleges készlet cserép vörös színben
Ø 80/80 mm-es, szétválasztott készlet
Ø 80 mm-es vízszintes elvezető készlet túlnyomásos üzemre alkalmas kéménybe történő bekötéshez
Ø 80 mm-es vízszintes ki- és bevezető készlet
Ø 80 mm-es végelem vízszintes ki- és bevezetéshez
Ø 80 mm-es függőleges ki- és bevezető készlet
Ø 80/125 mm-es vízszintes kivezető készlet induló idommal
Ø 80/125 mm-es függőleges kivezető készlet induló idommal és ferde tető átvezető gallérral
Ø 60 mm-es tömítőgyűrű
Ø 80 mm-es tömítőgyűrű
Ø 80 mm-es tömítőgyűrű ívekbe
Ø 100 mm-es tömítőgyűrű
Ø 110 mm-es tömítőgyűrű
Ø 125 mm-es tömítőgyűrű
Ø 60/100 mm-es tömítőgyűrű
Ø 80 mm-es, 0,5 m-es toldócső
Ø 80 mm-es, 1 m-es toldócső
Ø 80 mm-es, 2 m-es toldócső
Ø 60/100 mm-es, 0,5 m-es toldócső
Ø 60/100 mm-es, 1 m-es toldócső
Ø 80/125 mm-es, 1 m-es toldócső
Ø 80/125 mm-es, 2 m-es toldócső
Ø 80 mm-es, 90°-os ív
Ø 80 mm-es, 45°-os ív
Ø 60/100 mm-es, 90°-os ív
Ø 60/100 mm-es, 45°-os ív
Ø 80/125 mm-es, 90°-os ív
Ø 80/125 mm-es, 45°-os ív
Ø 80 mm-es, karimás, induló idompár
Ø 60 mm-es, 1 m-es toldócső
Ø 60 mm-es, 2 m-es toldócső
Ø 60 mm-es, 90°-os ív
Ø 60 mm-es, 45°-os ív
Ø 60 mm-es rögzítő kengyel csőtoldatok szétcsúszása ellen
Ø 60 mm-es támasztó gyűrű kéményben történő szereléshez a cső központosításához
Felfúrható konzol és csúszó támasztó lemez
Ø 60 mm-es, induló készlet a kémény bekötéshez, Ø 80/60 mm-es szűkítő idommal, 90°-os ívvel és rögzítő pánttal
Kémény szerelőnyílását lezáró készlet szerelőnyílást lezáró lemezzel, tartólemezekkel Ø 80-mm-es bekötéshez, szorítógyűrűs csatlakozóval a kondenzvíz kivezetéshez
Ø 80/125 mm-es, lapos tető átvezető gallér
Ø 80 mm-es flexibilis béléscső készlet
Alap készlet 80-as flexibilis béléscső rendszerhez
Ø 80/125 m-es füstgáz kivezető végelem, kültéri egység 80-as flexibilis béléscső rendszerhez
Toldó adapter 80-as flexibilis csövek közé
Kézi vezérlésű szobatermosztát
Crono 7 heti programozású, digitális szobatermosztát
Crono 7 vezeték nélküli, heti programozású, digitális szobatermosztát
Tybox 21 digitális szobatermosztát
Tybox 117 heti programozású, digitális szobatermosztát
Tybox 137 vezeték nélküli, heti programozású, digitális szobatermosztát
Super AMICO heti programozású digitális távvezérlő
AMICO V2 heti programozású, digitális távvezérlő
Ø 80 mm-es, karimás, induló idom füstgáz elvezetéshez
Ø 60/100 mm-es, karimás, induló idom
Ø 80/125 mm-es, karimás, induló idom
Ø 100 mm-es, fali, csatlakozó idom C9X rendszerhez
Ø 125 mm-es, fali, csatlakozó idom C9X rendszerhez, Ø 80/125 mm-es, karimás, induló idommal
Ø 60/100 mm-es, egyenes idom nyitható vizsgáló nyílással
Ø 80/125 mm-es, egyenes idom nyitható vizsgáló nyílással
Ø 60/100 mm-es, könyök idom nyitható vizsgáló nyílással
Ø 80/125 mm-es, könyök idom nyitható vizsgáló nyílással