VICTRIX Superior TOP 32 kW
- 32.0kW Névleges fűtési teljesítmény
- - Névleges HMV teljesítmény
- Fali átfolyós kombi Működés módja
- - Szezonális hatásfok (2010/30/EU)
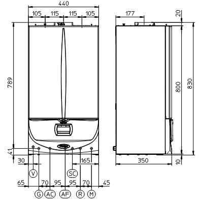
- 830 / 440 / 350 Méret (mag/szél/mély)
Bemutatás
A Victrix Superior TOP 32 kW kondenzációs fali gázkazán 32kW teljesítménnyel képes fűtési, illetve átfolyós rendszerben használati melegvizet előállítani. A Victrix Superior TOP 32 kW kazánok új, nagyteljesítményű hidraulikai egysége kis szervizigényű és az alacsony hidegvíz rendszernyomással is jól együttműködik. A készülék az új Super Amico vagy a korábbi Amico távszabályzóval (opcionális) könnyen és gyorsan, a készüléktől távolról is vezérelhető. Külső érzékelő (opcionális) csatlakoztatása esetén időjárásfüggő szabályozás (alap felszereltség) használata is lehetséges. Modulációs szivattyúja még takarékosabbá teszi a készüléket, hiszen a szivattyú fordulatszámát a vezérlő elektronika képes szabályozni. Felhasználóbarát elektronikájának köszönhetően egyszerűen üzemeltethető.
KÉT FÜGGETLEN HŐCSERÉLŐ
Mind a fűtési, mind a HMV hőcserélő rozsdamentes acélból készült.
DIGITÁLIS VEZÉRLÉSŰ LÁNGMODULÁCIÓ
Az elektronikus lángmoduláció folyamatos energia megtakarítás és emelt szintű komfort biztosítása mellett képes a fűtővíz, valamint a használati melegvíz hőmérsékletének megfelelő szabályozására.
SZABÁLYOZHATÓ BY-PASS
A szabályozható by-pass része a készülék alapfelszereltségének, és lehetővé teszi a kazán használatát termosztatikus szeleppel felszerelt radiátoros rendszer esetén is.
MOTOROS VÁLTÓSZELEP
A használati melegvíz előállításakor a beépített, motoros váltószelep irányítja a kazánvizet a HMV hőcserélő felé.
„AQUA CELERIS” RENDSZER
Egy gombnyomással aktiválható az úgynevezett Aqua Celeris berendezés, mely lehetővé teszi, hogy a kihűlt HMV hőcserélő miatt jelentkező HMV szolgáltatás késlekedése kiküszöbölhető legyen.
NAGYMÉRETŰ LCD KIJELZŐ
A nagyméretű kijelzőn a készülék számos információt közöl a felhasználóval. Megjeleníti a különböző működési jellemzőket, az aktuális funkciót (szivattyú utókeringtetés, égéstér szellőztetés, HMV készítés, stb.) vagy akár az üzemórák, gyújtások számát.
EGYÜTTMŰKÖDÉS A DIM EGYSÉGEKKEL
A Victrix Superior TOP 32 kW készülék képes teljes körűen együttműködni az Immergas DIM egységeivel, így lehetséges több, egymástól független fűtési kör (akár radiátoros, akár kevert) kialakítása.
BEÉPÍTETT IDŐJÁRÁSFÜGGŐ SZABÁLYOZÁS
Az időjárásfüggő szabályozás magasabb komfort mellett biztosít költséghatékonyabb üzemelést. Az elektronika a külső hőmérséklet függvényében változtatja a kazánvíz-hőmérsékletet, így energiát takarít meg és magasabb komfortot biztosít.
KONDENZÁCIÓS TECHNOLÓGIA
Az égéstermék rejtett hőjének (vízgőz tartalmának) kihasználása (kondenzációja) révén ugyanannyi energiát, mint a hagyományos, nem kondenzációs készülékek, kevesebb gáz eltüzelésével képesek leadni. A jobb tüzeléstechnikai hatásfok révén nem csak energiát takarít meg, hanem a környezetet is kevésbé terheli.
MODULÁCIÓS SZIVATTYÚ
A vezérlő elektronika képes automatikusan kiválasztani a három sebességi fokozatból a megfelelőt, hogy az előremenő és a visszatérő fűtővíz hőmérsékletének különbsége mindig a beállított értékű legyen.
IPX5D ELEKTROMOS VÉDETTSÉG
Magas páratartalmú és fröccsenő vizes környezetben is biztosítja a készülék biztonságos működését. A fürdőszoba I. zónájába is elhelyezhető, akár kád fölé is.
Méretek
|
BEFOGLALÓ MÉRETEK |
||||
|
Típus |
Magasság [mm] |
Szélesség [mm] |
Mélység |
Füstgáz evezetés / levegő bevezetés mérete [mm] |
|
VICTRIX Superior 32 kW |
830 |
440 |
350 |
Ø 60/100 |

|
CSATLAKOZÓ MÉRETEK |
|||||||
|
Típus |
Fűtési előremenő |
Fűtési visszatérő |
Használati melegvíz |
Kondenzvíz elvezetés SC |
Használati hidegvíz |
Gáz
|
Elektromos hálózat V |
|
VICTRIX Superior 32 kW |
3/4" |
3/4" |
1/2" |
NA25 |
1/2" |
3/4" |
22OV / 50Hz |