- - Működés módja
- A hőszivattyú teljesítményétől függ Névleges fűtési teljesítmény/COP (35/30°C DT és 7°C külső hőm. mellett)
- A hőszivattyú teljesítményétől függ Névleges hűtési teljesítmény/EER (18/23°C DT és 35°C külső hőm. mellett)
- A hőszivattyú teljesítményétől függ Szezonális hatásfok (2010/30/EU)
Bemutatás
Trio rendszer több enerigaforrás integrálhatóságával
Télen fűtés, nyáron hűtés, valamint igény szerint használati melegvíz biztosítása
egész évben. A TRIO ErP egy vizes fűtési/hűtési rendszer, melynek célja, hogy különböző
energiaforrásokat tudjon hasznosítani, és olyan kompakt hibrid rendszereket hozzon
létre, melyek széleskörű szabályozhatóságuk által újszerű megoldásokat kínálnak
elsősorban új épületek esetében. Úgy tervezték, hogy integrálhatók legyenek
kondenzációs kazánokkal, hőszivattyúkkal, napelemekkel, és napkollektorokkal:
így a 4 különböző rendszer képes különféle energiaforrásokat hasznosítani.
Lehetséges variációk:
Trio Base - Trio rendszer + Audax hőszivattyú
Trio Combi - Trio csomag + Audax hőszivattyú + Victix Omnia vagy Tera átfolyós kombi gázkazán
Trio Plus - Trio csomag + Audax hőszivattyú + Victrix Tera Plus kombi gázkazán
Trio Pro - Trio csomag + Magis Pro hőszivattyú
Mind a négy variációhoz szükséges választani egy tároló szekrényt a kivitelezési igényektől függően.
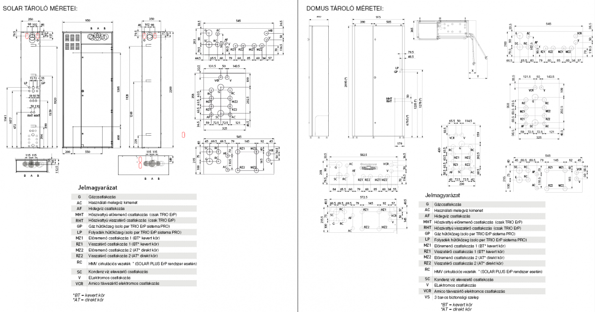
Amennyiben a tárolót falon kívül, lakótérbe szeretnék telepíteni, úgy a DOMUS tároló (rendelési kód: 3.022167) szükséges.
Az épület falába süllyesztett beszerelés a SOLAR tárolóval (rendelési kód: 3.020166) lehetséges.
A 3.027830 rendelési kóddal rendelkező TRIO ErP csomag három fő részből áll:
• 160 literes rozsdamentes HMV tároló dupla csőkígyóval, magnézium anóddal,
hőszigeteléssel, és biztonsági szeleppel.
• Az alaptartozék részét képző távvezérlő panellel vezérelhető az elektronika, mely
programozható, és két zónát képes kezelni.
• A kétzónás hidraulikai szabályozórendszer (1 direkt és 1 kevert kör):
1 db hidraulikai osztó-gyűjtő;
1 db háromjáratú váltószelep;
1 db háromjáratú keverőszelep;
2 db alacsony energiaszintű szivattyú;
1 db 8 literes HMV tágulási tartály;
1 db 8 bar-os biztonsági szelep;
1 db termosztatikus HMV keverőszelep;
2 db hőmérséklet érzékelő.
A beépített csövek és szerelvények megfelelően szigeteltek, hogy csökkentsék a
hőveszteséget fűtés esetén, és megakadályozzák a hűtésnél fellépő páraképződést.
Méretek

Műszaki adatok
A TRIO Plus, Combi, Base és Pro hibrid hőszivattyú rendszerek variálhatóságuk miatt, más-más kültéri és beltéri egységekkel rendelkeznek, igy műszaki adataik is eltérőek. A lehetséges rendszerekhez az alábbi táblázat nyújt segítséget.
TRIO Plusz rendszer:
Monoblokkos hőszivattyú: Audax 6, 8, 12
Kondenzációs fűtőkazán: Victrix TERA 24 PLUS
TRIO Combi rendszer:
Monoblokkos hőszivattyú: Audax 6, 8, 12
Kondenzációs kombikazán: Victrix TERA 28; Victrix OMNIA 25
TRIO Base rendszer:
Monoblokkos hőszivattyú: Audax 6, 8, 12
TRIO Pro rendszer:
Szplit típusú hőszivattyú: Magis Pro 4, 6, 9
A fent felsorolt egységekhez tartozó műszaki táblázatokat, adatokat megtalálhatja a hozzájuk tartozó menüpontokban.
További részletes információkért, keressen minket elérhetőségeinken bizalommal.
Kiegészítők
Kiegészítő 3 fokozatú (2/4/6 kW) elektromos fűtőpatron fűtési rendszerekhez
SOLAR tároló Trio rendszerhez
DOMUS tároló Trio rendszerhez
Csatlakozó szett Trio Base rendszerhez
Csatlakozó szett Trio Pro rendszerhez
Csatlakozó szett Trio Combi rendszerhez (Omnia kazánhoz)
Csatlakozó szett Trio Combi rendszerhez (Tera kazánhoz)
Csatlakozó szett Trio Plus rendszerhez (Tera kazánhoz)
HMV cirkuláció bekötőkészlet Trio szerkényhez (szivattyú nélkül)
Fűtő/hűtőköri csatlakozó készlet Trio szerkényhez oldalsó csatlakozással
Fűtő/hűtőköri csatlakozó készlet Trio szerkényhez alsó csatlakozással
Fűtő/hűtőköri csatlakozó készlet Trio szerkényhez hátsó csatlakozással
Elektromos HMV fűtőpatron Trio szekrényhez 1,5 kW-os
Magasítás DOMUS szerkényhez
Szolár szett Trio szekrényhez