- - Működés módja
- 1650 W Névleges fűtési teljesítmény/COP (35/30°C DT és 7°C külső hőm. mellett)
- - Névleges hűtési teljesítmény/EER (18/23°C DT és 35°C külső hőm. mellett)
- A+ , XL Szezonális hatásfok (2010/30/EU)
Bemutatás
Használati melegvíz hőszivattyú
- HMV előállítás hőszivattyúval és/vagy elektromos fűtőpatronnal
- Üzemkész állapotban szállítva: R513A munkaközeggel gyárilag feltöltve (860g)
- Kompakt, monoblokk kivitel: a hideg és melegvíz csatlakozások közvetlenül a használati vízrendszerre köthetőek
- Inverteres szabályzás a mindenkori igényekhez legjobban igazodó teljesítményfelvétel érdekében
- Fokozatmentesen változó ventilátor és kompresszor fordulatszám
- Beépített fűtő csőkígyó külső hőforrás csatlakoztatásához: például kazán vagy napkollektoros rendszer (300 SOL típus esetén)
- Beépített merülőhüvely tároló érzékelőhöz (300 SOL típus esetén)
- Elektromos fűtőpatronnal gyárilag felszerelt (1,8kW)
- Nagyteljesítményű csőkígyó (300 SOL típus esetén)
- Anódrudas tárolóvédelem
- Kiemelhető rádiófrekvenciás szabályzó egység az egyszerű vezérléshez
- Öndiagnosztikai rendszer: főbb üzemzavarok és a hőszivattyú pillanatnyi üzemmódjának kijelzése a műszerfalon lévő kijelző segítségével
- Beépített tágulási tartály
- Biztonsági szelep gyári tartozék
- Programozható működés
- Légcsatornázható kivitel
- Energiatakarékos működés hőszivattyús üzemmódban
- Automatikus vagy kézi üzemmód váltás: Economy / Hybrid / E-heater
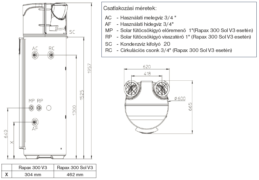
Méretek

Műszaki adatok

