- Szplit rendszerű Működés módja
- 16,00kW / 4,26 Névleges fűtési teljesítmény/COP (35/30°C DT és 7°C külső hőm. mellett)
- 15,00kW / 3,62 Névleges hűtési teljesítmény/EER (18/23°C DT és 35°C külső hőm. mellett)
- A+ (55°C), A++ (35°C) Szezonális hatásfok (2010/30/EU)
Bemutatás
A kültéri egység főbb jellemzői (Audax Pro):
- inverteres technológia kettős rotációs működéssel
- R410A típusú előre feltöltött közeg
- elzárószelepek az R410A hűtőkörre gyári tartozékként
- nagy hatékonyságú, lamellás levegő/hűtőközeg hőcserélő
- 4-utú szelep a fűtés/hűtés üzemmód átváltásához
- fűtő / hűtő üzemmód
- kültéri telepíthetőség külön kiépítendő védelem nélkül
A beltéri hidraulikai egység főbb jellemzői:
- 72 lemezből álló R410A / víz hőcserélő
- beépített 12 literes fűtési tágulási tartály
- beépíthető 3 kW-os elektromos fűtőpatron (választható)
- hidraulikai egység alacsony energiaszintű szivattyúval
- 3-utó váltószelep HMV tárolóhoz való csatlakozáshoz
- vezérlőpanel 3 fűtési/hűtési zóna vezérléshez (2 direkt és 1 keverőszelepes zónához vagy kigészítő panellal 1 direkt és 2 kevert zónához)
- integrált rendszer vezérlő csatlakozási lehetőség (választható)
- tartozék elzáró csapok szűrővel
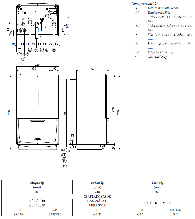
Méretek

Műszaki adatok

Felépítés

Kiegészítők
Zóna távszabályzó panel
Hőmérséklet és páratartalom érzékelő MODBUS kit
Páratartalom szabályzó
Crono 7 heti programozású, digitális szobatermosztát
Crono 7 vezeték nélküli, heti programozású, digitális szobatermosztát
Külsőhőmérséklet-érzékelő
Fali rögzítő készlet
3-utas szelep HMV előnykapcsoláshoz, hűtés/fűtés váltáshoz
HMV tároló érzékelő
Többfunkciós relé panel
Páramentesítő egység
Falba süllyeszthető beépítőkeret páramentesítő egységhez
Előlapi rács a páramentesítő egységhez
2 relés panel páramentesítő használatához
Tálcafűtés készlet hőszivattyúhoz
3 kW-os elektromos fűtőpatron készlet (Magis Pro 4-16 készülékbe építhető)
DIM HC ABT hidraulikai zónaegység (1 direkt és 1 keverőszelepes zóna) Magis 12-14-16 sorozathoz sorozathoz
Biztonsági termosztát készlet