DIM HC 2BT PLC

Rendelési kód | 3.021528
(fűtő / hűtő zónaegység) PLC szabályozóhoz
  • 3 bar Maximális rendszer nyomás
  • 90.00°C Maximális fűtővíz hőmérséklet
  • 34,27 kPa Szivattyú hasznos teljesítménye (1000l/óra mellett) keverőszelep nélküli körön
  • 35,50 kPa Szivattyú hasznos teljesítménye (1000l/óra mellett) keverőszelepes körön

Bemutatás

Hidraulikus zóna egység két kevert körhöz

 

DIM HC 2BT hidraulikai modul zárt lemez szekrényben, falra szerelhető (vagy igény szerint falbasüllyeszthető) kivitelben. Előnye a kis helyigény - mélységük mindössze 19 cm! - valamint az esztétikus megjelenésük és a könnyű felszerelhetőségük. A modul tartalmazza a zónák függetlenített vezérlését (zónánkénti szobatermosztát opcióval), a megfelelő számú fűtési keringtető szivattyút és a hőszigetelt hidraulikai váltót a bekötő csövekkel és csatlakozókkal, valamint az ABT és A2BT változat esetében a motoros keverőszelepet és integrált időjárásfüggő szabályozást. Ezekkel a DIM HC egységekkel szinte bármilyen szabályozási igény megoldható, mivel korlátlan számban összeköthetőek! A továbbfejlesztett elektronikának köszönhetően a DIM HC egységeket Immergas BUS csatlakozással felszerelt hőszivattyúkkal üzemeltetve az egyes zónák időjárásfüggő szabályozásának működéséhez egy érzékelő csatlakoztatása is elegendő. Az egységek alacsony energiaszíntű szivattyúval felszereltek.

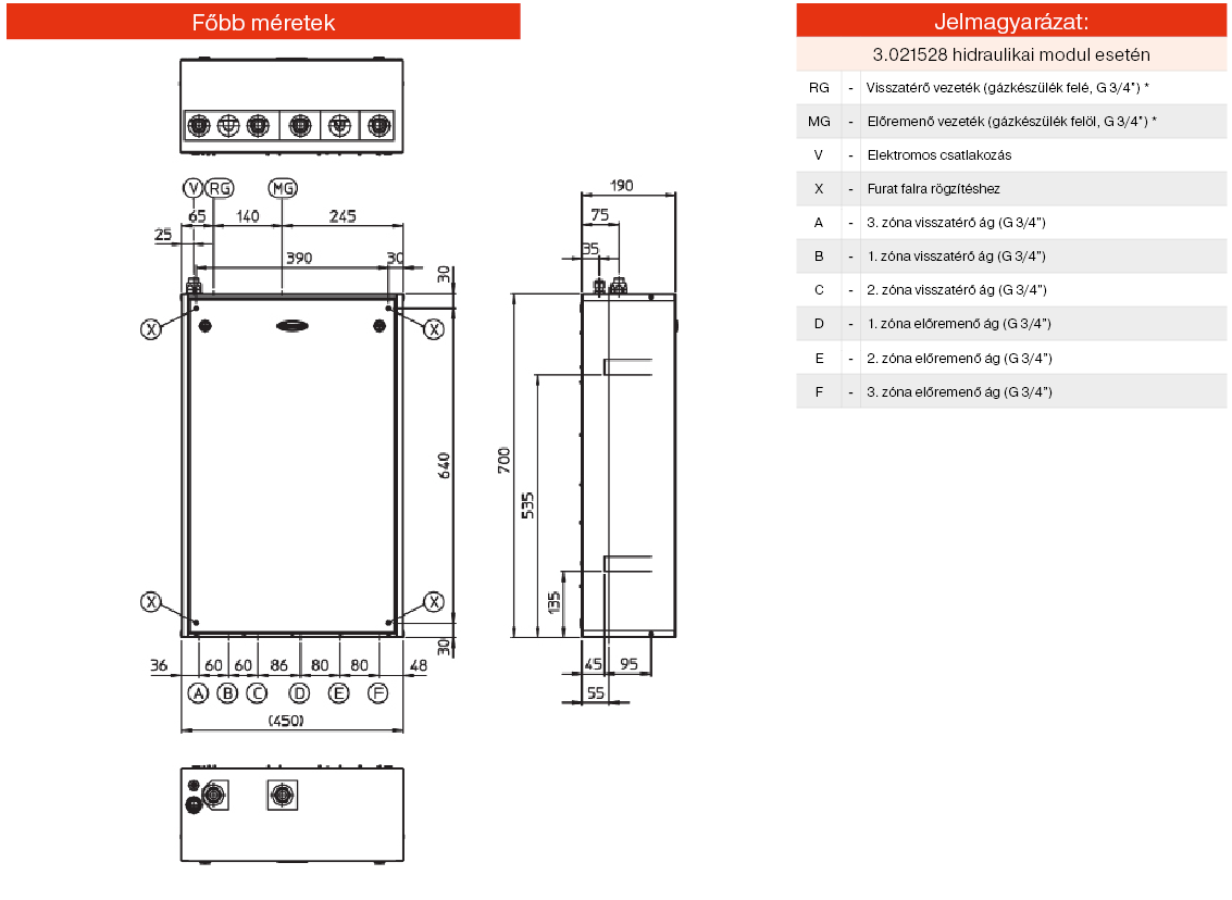
Méretek

"
 

Műszaki adatok

"

Letölthető anyagok

Kézikönyv
Prospektus
Oldal tetejére