Eolo Mini 28 kW

Rendelési kód | 3.020856
Kifutott termék.
  • 28.0kW Névleges fűtési teljesítmény
  • - Névleges HMV teljesítmény
  • Fali átfolyós kombi Működés módja
  • - Szezonális hatásfok (2010/30/EU)
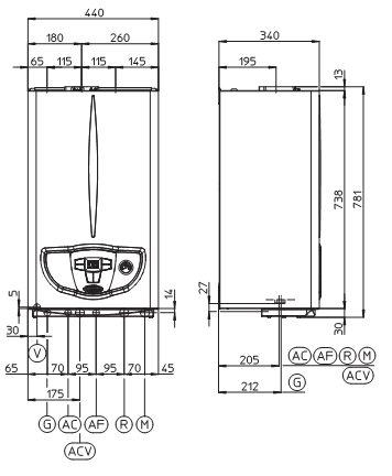
  • 781 / 440 /340 Méret (mag/szél/mély)

Bemutatás

Az EOLO Mini 28 kW fali készülékcsalád 28 kW teljesítménnyel képes fűtési-, és átfolyós rendszerben használati melegvizet előállítani. Kompakt méreteinek köszönhetően a lakás szinte bármely részén elhelyezhető. A készülék az  Amico V2 távszabályzóval (opcionális) könnyen és gyorsan, a készüléktől távolról is vezérelhető. Külső érzékelő (opcionális) csatlakoztatása esetén időjárásfüggő szabályozás (alap felszereltség) alkalmazása is lehetséges. Felhasználóbarát elektronikájának köszönhetően egyszerűen üzemeltethető, az állapotjelző ábrák könnyen értelmezhetők.

KÉT FÜGGETLEN HŐCSERÉLŐ

Az egyik rézből a fűtési körhöz, a másik rozsdamentes acélból a használati melegvíz körhöz. Ez a megoldás kiváló teljesítményt nyújt a fűtéshez és a használati melegvíz készítéshez.

PROGRAMOZHATÓ LÁNGMODULÁCIÓ

Az elektronikus lángmoduláció folyamatos energia megtakarítás és emelt szintű komfort biztosítása mellett képes a fűtővíz, valamint a használati melegvíz hőmérsékletének megfelelő szabályozására. A maximális teljesítmény elérése akár tíz perc időtartamra is elnyújtható, ezáltal csökkentve a ki-bekapcsolások számát, növelve a hőcserélő élettartamát.

SZABÁLYOZHATÓ BY-PASS

A szabályozható by-pass lehetővé teszi a kazán használatát termosztatikus szeleppel felszerelt radiátoros rendszer esetén is. A szabályozható by-pass optimális működést tesz lehetővé (alap felszereltség).

MOTOROS VÁLTÓSZELEP

A használati melegvíz előállításakor a beépített, motoros váltószelep irányítja a kazánvizet a HMV hőcserélő felé.

EGYÜTTMŰKÖDÉS A DIM EGYSÉGEKKEL

Az Eolo Mini kW készülékek képesek teljes körűen együttműködni az Immergas DIM egységeivel, így lehetséges több, egymástól független fűtési kör (akár radiátoros, akár kevert) kialakítása.

BEÉPÍTETT IDŐJÁRÁSFÜGGŐ SZABÁLYOZÁS

Az időjárásfüggő szabályozás magasabb komfort mellett biztosít költséghatékonyabb üzemelést. Az elektronika a külső hőmérséklet függvényében változtatja a kazánvíz-hőmérsékletet, így energiát takarít meg és magasabb komfortot biztosít.

IPX5D ELEKTROMOS VÉDETTSÉG

Magas páratartalmú és fröccsenő vizes környezetben is biztosítja a készülék biztonságos működését.

SOLAR READY

A készülék képes együttműködni napkollektoros rendszerrel. A részletekért, kérjük, látogassa meg napkollektoros oldalainkat.

Méretek

BEFOGLALÓ MÉRETEK

Típus

Magasság

[mm]

Szélesség

[mm]

Mélység
[mm]

Füstgáz evezetés / levegő bevezetés  mérete

[mm]

EOLO Mini 28 kW

781

440

340

Ø 60 / 100 

CSATLAKOZÓ MÉRETEK

Típus

Fűtési előremenő
M

Fűtési visszatérő
R

Használati

melegvíz
AC

Használati

hidegvíz
AF

Gáz


G

Elektromos hálózat
 

V

EOLO Mini 28 kW

3/4"

3/4"

1/2"

1/2"

3/4"

23OV / 50Hz

Letölthető anyagok

CE Tanúsítvány
Prospektus
EU megfelelősségi nyilatkozat
Égéstermék elvezetés méretezése
Oldal tetejére