Caesar Eco 11

Rendelési kód | 3.028684
Kifutott termék.

Bemutatás

Zárt égésterű átfolyós vízmelegítő

10,8 l/perc melegvíz teljesítménnyel

- Zárt égéstér
- Nagy hatékonyságú hőcserélő
- Elektronikus gyújtás és ionizációs láng őrzés
- Folyamatos lángmoduláció az átfolyó vízmennyiség alapján
- IPX5D elektromos védettség
- Biztonsági nyomáskapcsoló füstgáz-ventillátornál 
- Öndiagnosztikai rendszer
- 10,8 liter/perc melegvíz hozam (25°C fokos hőmérsékletkülönbség mellett)

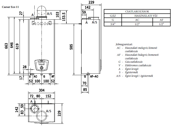
Méretek

Kiegészítők

Letölthető anyagok

CE Tanúsítvány
Kézikönyv
Oldal tetejére