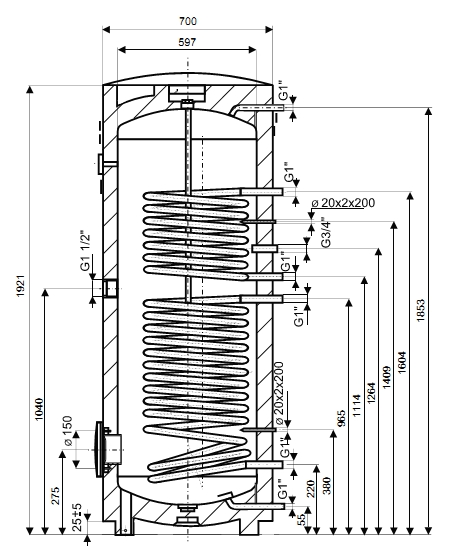
- 470 liter Tároló mérete
- - Működés módja
- zománcozott acél Tároló anyaga
- 40 kW / 65 kW Hőcserélő teljesítmény
- "C" kategória Szezonális hatásfok (2010/30/EU)
Bemutatás
Melegvíz tároló zománcozott acélból
- Beépített magnézium anódrúd
- Két fűtő csőkígyó
- Felső hőcserélő teljesítménye: 40 kW *
- Alsó hőcserélő teljesítménye: 65 kW *
- Tároló felfűtési ideje felső/alsó hőcserélővel 10 C-ról 45 C-ra: 23/16 perc
- Felső hőcserélő felülete: 1,30 m2
- Alsó hőcserélő felülete: 1,90 m2
- Tömege víz nélkül: 198 kg
- Hőveszteség: 2,4 kWh / 24 óra
- Megengedett legnagyobb nyomás a tárolóban: 10 bar
- Megengedett legnagyobb nyomás a hőcserélőben: 16 bar
* 80 C hőmérsékletű fűtővíz 720 liter/órás térfogatárama mellett.
Méretek
